Designed as a high-rise CLT. A vision for radically low carbon affordable housing on Parcel D4.

Client: Preservation of Affordable Housing (POAH), DREAM Development, Asland

Firm: DREAM Collaborative, Sara Kudra, Affordable Housing Director

Stats

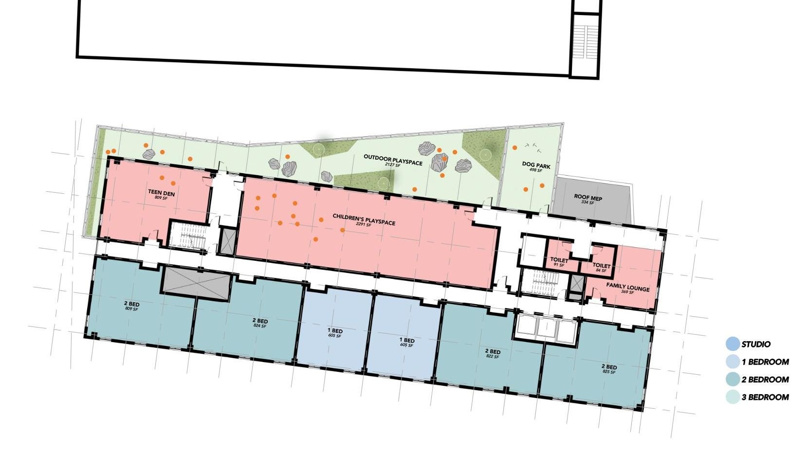
  • ~200 Units, affordable housing

  • ~200,000 GSF, 20 stories

  • Designed to EUI 14 kBtu/sf/yr

  • Boston, MA

Rendering: Tangram

The proposed high-rise takes inspiration from the Boston harbor at sunset. Vertical solar fins are envisioned to deliver power with a small roof, but maximum sun exposure over the Big Dig.

Sitting just yards from the water’s edge Parcel D-4 starts a dialogue with the water. The façade is a series of high-performance panels; when the goal is to prevent thermal bridging and create an air-tight seal, the façade needs to be flat and uniform.

Designing within these constraints an elegant pattern of rippling water at sunrise inspired the color and pattern of the façade. To create shadow lines and relief, solar fins are added to generate much needed site-sourced electricity.

While the team was not designated to execute the project, the concepts live on, hoping to inspire others to create radical, beautiful, affordable housing.

Previous
Previous

Concord Ave

Next
Next

Amy Lowell